JLG蓄电池结果与谈论
结果与谈论
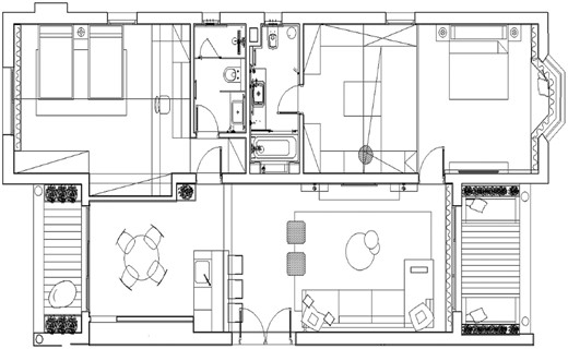
在本研讨中,研讨了一个总面积为200平方米的居处。它包括两个卧室、两个客厅、一个厨房和一个浴室,如图2所示。为了研讨规划和智能家居动力处理系统(SHEMS)在最大化家庭经济效益方面的效果,模拟了不同的电力源配备,将在下一末节中谈论。

Fig. 2:
研讨中的家。
3.1 默许情况
基准案例是一个未处理的案例,其负荷曲线由业主根据表2所示的每周方案选择。在两个卧室和客厅都设备了四台空调,以坚持室内温度约为25摄氏度,根据六月份开罗的温度曲线(介于22摄氏度和41摄氏度之间),如图3所示。均匀月能耗可以估量为1684千瓦时,根据埃及的电价方案,本钱为162.79美元,如表3所示。
研讨中的周方案
| 家用电器 | 营业时间 | 运行天数 |
|---|---|---|
| 冰箱 | 持续地 | 每一天 |
| 烤箱 | 19:00–21:00 | 星期一 |
| 20:00–21:30 | 星期二 | |
| 19:00–21:00 | 周四 | |
| 10:00–11:00 | 星期六 | |
| 11:00–13:00 | 周日 | |
| 铁 | 21:00–22:00 | 星期一 |
| 20:00–21:00 | 星期五 | |
| 18:00–19:00 | 周日 | |
| 空调 | 16:00–23:00 | 星期一 |
| 16:00–23:00 | 星期二 | |
| 16:00–23:00 | 星期三 | |
| 16:00–23:00 | 周四 | |
| 16:00–23:00 | 星期五 | |
| 上午8:00至11:00和下午5:00至晚上11:00 | 星期六 | |
| 上午8:00至10:00和下午5:00至晚上10:00 | 周日 | |
| 洗衣机 | 17:30–18:55 | 星期一 |
| 10:00–11:30 | 星期六 | |
| 12:00–13:30 | 周日 | |
| 灯具 | 17:00–23:30 | 每一天 |
| 电视 | 17:00–23:30 | Mon-Fri |
| 上午10:00至下午2:00和晚上7:00至9:00 | 星期六 | |
| 上午9:00至下午1:00和晚上8:00至11:00 | 周日 | |
| 电动汽车电池 | 18:00–07:00 | 每一天 |
埃及电价表
| 电气板 | 能耗 | 关税(美元/千瓦时) |
|---|---|---|
| 0–100 | 0–50 | |
| 51–100 | ||
| 101–1000 | 0–200 | |
| 201–350 | ||
| 351–650 | ||
| 651–1000 | ||
| 大于一千 | 固定费率 | |
| 出售 | 固定费率 |

Fig. 3:
研讨中的温度曲线(开罗,六月)。
3.2 带光伏系统的居处
研讨了默许情况,即一个掩盖面积为192平方米、均匀功率为30%的8千瓦光伏系统[44]。该光伏系统作为一个可以售电给国家电网的电力来历。根据6月(晴朗天空)的均匀太阳辐射日核算每周/每日光伏发电量。在这种情况下,研讨了相同的默许负载曲线,没有进行任何负载转移进程,以评价向公用事业电网出售剩下电力的经济效益。
光伏系统将每周购买电力从默许情况的420千瓦时减少到340千瓦时。此外,每周向电网出售约270千瓦时的电力。根据埃及的电价,月度消费本钱下降至141.5美元,售电收入为42.3美元。因此,终究的电费账单下降至99.22美元,约为默许情况本钱的61%。
3.3 负荷转移
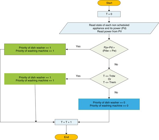
根据这种负荷概括情况,出售电价十分低,约为购买电价的70%。所提出的方案依赖于将可调度负荷转移到阳光明媚的时段,以掩盖最大或许的负荷,而不是廉价地将动力卖回电网。两个家用电器被选为可转移负荷:洗碗机和洗衣机。
通过运用MILP,根据它们的优先级来调度可移动负载。可移动负载的优先级根据预期的可用光伏功率进行处理。额外的足够的光伏功率启动了不间断的洗刷操作周期,如图4所示。

Fig. 4:
负荷转移流程图。
SHEMS为家庭用户举荐了每周和每日的时间结构内最佳运行时间。图5和图6展示了可转移负载在转移前后归一化为光伏最大功率的电力。

图5:
加载功率曲线后搬迁。

Fig. 6:
加载偏移后的功率曲线。
通过比较图5和图6,所提出的系统将可移动负载转移到光伏电力足够的时间段。虽然可移动负载的功率与光伏电力比较可以忽略不计,但更多的可移动负载或许会进步这种常见能量处理概念的可行性,但这将严重影响家庭用户的满足度。
根据用户的周/日方案,估算出每月节省的电费,以明晰建议的调度方案对用户的优点。在这些研讨条件下,总月度购电量为1454千瓦时,花费为4140.55埃及镑,而总月度售电量则为606.8千瓦时,花费为41.44美元。总付出费用仅减少了99.11美元,约为无负荷转移情况下的付出账单的约99.89%。
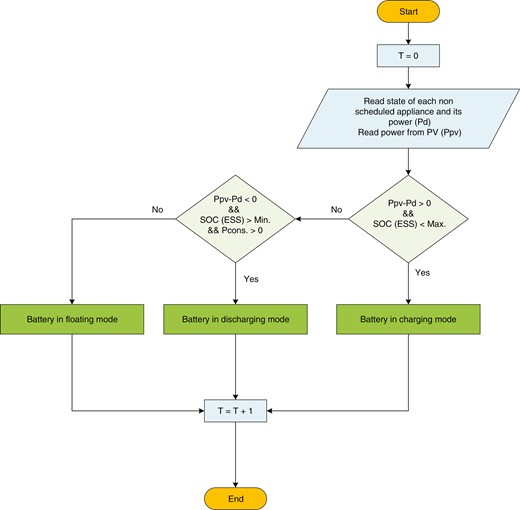
3.4 配备光伏/电池系统的居处
电池设备在这个设备中以储存光伏动力,而不是廉价地将其卖回电网。根据预先核算的每日剩下的光伏动力,运用混合优化多个动力资源(HOMER)软件[45]选择电池规范。充电/放电进程在答应的充电情况范围内根据光伏功率和家庭负载之间的差异进行操控,以坚持电池寿数[46]。由于没有剩下的光伏电力或预期的过/欠充电进程,电池在起浮模式下与家庭电网断开联接,如图7所示。

Fig. 7:
带光伏/电池流程图的智能家居系统。
电网总耗电量为882.8千瓦时,本钱为56.576美元,约占总月费用的57%。在本研讨案例中,车辆到家庭(V2H)选项没有用处。电动汽车抵达时间不在有用日照期内。由于埃及IBR关税的性质,本例中运用车辆电池作为电源没有经济效益。相反,V2H进程将由于不必要的充电/放电循环增加而减少EV电池的运用寿数。
3.5 最小化日常耗费
在这种情况下,空调情况是通过定义舒适区域来操控的,这些区域根据家庭中居住人数的不同而不同。由于每周/每日方案,可以确定家庭用户数量,并提出相关的小时激活空调供房主赞同。工作日家庭居住人数假设为三人,周末则更多。因此,周末空调掩盖的区域增加,以满足舒适生活方式的要求。图8和图9别离显现了最小化其掩盖区域之前的空调负载曲线和之后的空调负载曲线。

Fig. 8:
空调加载电力未经处理。

Fig. 9:
空调负荷功率处理后。
研讨期间气候相对炽热。因此,在每天阳光足够的时间内,负载耗费显着减少。在这种情况下,光伏发电量超过了负载曲线和电池充电进程。因此,剩下的光伏电力被卖回电网。
如图9所示,根据家庭居住人数定义舒适的空调房间后,交流电能比图8显着减少。月能耗为652.8千瓦时,费用为39.56美元,而售回电网的电能为124.48千瓦时,费用为8.502美元。总付出本钱为31.06美元,约为未减少负载情况下光伏/电池系统本钱的55%。表4总结了一切研讨中的联网家庭月能耗和本钱情况。
如表4所示,光伏系统将均匀月总电费下降了约39%。一个设备的光伏系统的均匀本钱约为10666.7美元,运用寿数为25年。因此,节省的消费本钱将在短短14年内偿还光伏系统的出资。在所研讨的情况下,由于分时电价只重视耗费的能量,而不考虑峰值负载功率的时间,因此在SHEMS中常见的负荷转移概念是无用的。所研讨的PV/电池系统将月度本钱从默许情况下的65%下降,与向电网出售动力的情况比较,这是举荐的。此外,由于研讨期间(即六月)埃及气候相对炽热,减少交流负载显着下降了总账单,使其仅占默许情况的19%。
家庭病例总结
| 案例 | 购电(千瓦时) |
售电(千瓦时) |
净本钱(美元) | 本钱(%) |
|---|---|---|---|---|
| 默许 | ||||
| 带光伏发电的家庭 | ||||
| 负荷转移 | ||||
| 配备光伏/电池系统的居处 | ||||
| 减载 |
4 结论
许多发展中国家,如埃及,对居处修建或“家庭”征收IBR关税。关于这种盛行的关税应用于智能家居,现在还没有重要的研讨。区块费率首要重视每月累计耗费的电能,而不考虑负载功率行为。它将每月耗费的电能划分为不同的层次。关于高能耗水平,随着供电电力的补助减少,电价也会增加。
现有的智能动力处理系统首要依赖于负荷转移战略,通过将可控负荷转移到低电价时段来防止顶峰时段的高负载。许多系统中还采用了减少空谐和照明等部分负荷的措施以下降总耗电量。V2H(车辆到家庭)也被研讨作为智能家居的替代动力来历。一切这些战略都已经在IBR定价方案下进行了查验。
本研讨考虑了一个发展中国家家庭动力处理系统,该系统应用了埃及的阶梯电价。提出了一种三时间结构的处理方案:每周、每日和每小时。研讨了许多家庭和处理技术的特征,如下所述:
-
一般居处的默许情况是其他处理案例的参阅。
-
设备了并网家用光伏系统,可以选择将剩下电力卖回电网;在这种情况下,与默许情况比较,电费大约减少了39%。
-
由于分段电价性质,像洗衣机这样的移峰用电对总电费几乎没有影响。
-
设备电池增加了家庭光伏系统的经济收益。研讨了储存剩下的光伏动力而不是将其卖回电网的情况;月度电费下降到了本研讨默许情况的35%。
根据这些研讨条件,车辆到电网的概念与负载曲线没有有用匹配。因此,在所研讨的电价条件下,将电动汽车电池作为家庭电源源是没有经济效益的。
由于埃及气候相对炽热,通过定义舒适区来减少空调功率对月总电费影响显着。月总费用可以下降到默许值的约19%。
